
Der Tractel Doppelhaken QS ist für den horizontalen Transport von Blechen/Blechpaketen ausgelegt und arbeitet mit einem Arbeitsbereich von 0 - 300 mm. Je nach Variante stehen Tragfähigkeiten von 750 kg (QS 1.5) bis 1500 kg (QS 3) sowie definierte Grundmaße, Gewichte und EAN zur Verfügung. Für den sicheren Einsatz sind ein passendes Kettengehänge und der zulässige Anschlagwinkel 50° - 60° einzuhalten.
Der Tractel Doppelhaken QS ist für den horizontalen Transport von Blechen/Blechpaketen ausgelegt und arbeitet mit einem Arbeitsbereich von 0 - 300 mm. Je nach Variante stehen Tragfähigkeiten von 750 kg (QS 1.5) bis 1500 kg (QS 3) sowie definierte Grundmaße, Gewichte und EAN zur Verfügung. Für den sicheren Einsatz sind ein passendes Kettengehänge und der zulässige Anschlagwinkel 50° - 60° einzuhalten.
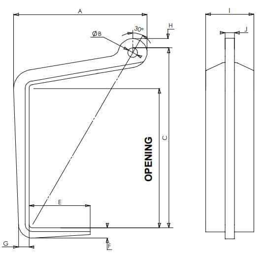
Der Doppelhaken QS von Tractel (Topal™) ist ein Einzelhaken für den horizontalen Transport von Blechen, Blechbündeln und geeigneten Konstruktionsteilen in Verbindung mit einem passenden Kettengehänge. Durch die feste, groß dimensionierte Öffnung eignet sich der QS besonders für dicke Bleche; die Baureihe arbeitet mit einem Arbeitsbereich von 0–300 mm. In der Praxis werden mehrere Haken zur Lastverteilung eingesetzt (häufig 4 oder mehr), je nach Lastlänge und Geometrie auch mindestens paarweise – stets unter Beachtung der zulässigen Anschlagwinkel und einer gleichmäßigen Lastaufnahme.
Abbildung: Tractel Doppelhaken QS (TOMANRO).
Der QS ist einfach zu bedienen und für wiederkehrende Transportaufgaben in der Blechlogistik ausgelegt. Die Ausführung ist als feste 300-mm-Variante konzipiert; Angaben zu Tragkraft und Gewicht beziehen sich jeweils auf den Einzelhaken (ohne Gehänge). Der Lieferumfang erfolgt ohne Kettengehänge und ohne Schäkel; passende Anschlagmittel sind anwendungsabhängig auszuwählen.
| Variante | Artikel-Nr. | EAN/GTIN | Tragfähigkeit | Arbeitsbereich | Gewicht ca. | Anschlagwinkel | Mindest Ketten-Ø |
|---|---|---|---|---|---|---|---|
| QS 1.5 0-300 | 50678 | 3600230506784 | 750 kg | 0–300 mm | 7 kg | 50°–60° | 8 mm |
| QS 3 0-300 | 50688 | 3600230506883 | 1500 kg | 0–300 mm | 10 kg | 50°–60° | 10 mm |
Für den Betrieb des Doppelhakens QS werden geeignete Kettengehänge und Verbindungselemente benötigt, insbesondere Schäkel als sichere Verbindung zwischen Haken/Anschlagring und Gehänge. Bei langen oder empfindlichen Blechen ist eine Traverse sinnvoll, um Anschlagpunkte zu spreizen und die Last stabil zu führen; als Hebezeug kann ein Tractel Kettenzug die präzise Positionierung unterstützen. Zubehör sollte hinsichtlich Tragfähigkeit, Kompatibilität und Einsatzbedingungen (z. B. Umgebung, Handlingfrequenz) aufeinander abgestimmt sein.
Typenseiten bei TOMANRO
Dokumente bei TOMANRO
Passendes Zubehör bei TOMANRO
