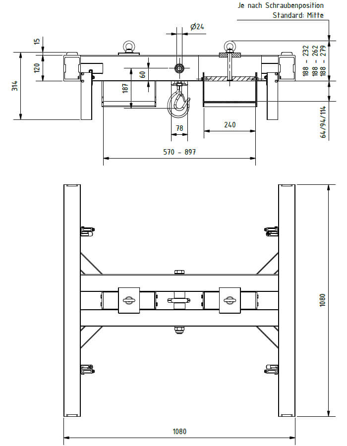
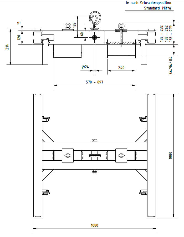
Die Alu-Lasttraverse dient zum Heben, Senken und Verfahren von Lasten geeigneter Größe mittels eines Hebegeräts (z.B. Gabelstapler) oder eines anderen Hebegeräts und/oder Anschlagmittels. Schillings Alu-Lasttraverse für Big-Bag wird bereits vollständig montiert angeliefert. Der Aluminiumwerkstoff ermöglicht eine sehr leichte Konstruktion und macht die Big-Bag-Traverse äußerst handlich.
Die Big-Bag-Traverse kann sowohl mit einem Gabelstapler aufgenommen als auch über ein Hebezeug bedient werden.
Der Lasthaken wird bei Verwendung eines Hebezeugs in die obere Position gedreht. Der Haken steht nun zur Aufnahme von Anschlagmitteln, Elektrokettenzügen oder Flaschenzügen zur Verfügung.
Zur Nutzung mit einem Gabelstapler ist die Big-Bag-Traverse mit Gabelstaplerschuhen ausgestattet. Die Abstände der Gabelstaplerschuhe müssen vor Gebrauch, an die Breite der Gabelstaplerzinken, angepasst werden. Dies geschieht über einfaches Lösen der Sterngriffschrauben und Verschieben der Gabelstaplerschuhe in die richtige Position. Nach Aufnahme der Zinken, werden die Gabelstaplerschuhe fixiert. Die Klemmung gewährleistet einen festen Sitz der Lasttraverse auf den Gabelstaplerzinken und verhindert ein ungewolltes Abrutschen.
Die Last wird an den 4 vorgesehenen Enden der Quertraversen eingehängt. Stellt sich beim Anheben eine Schräglage ein, sollte der Big-Bag noch einmal abgesetzt und die Aufhängung verändert werden. Die Traverseneinhängepunkte der Big-Bag-Traverse sind lang genug, um die Big-Bag-Schlaufen auf ihnen zu verschieben. So lässt sich der Schwerpunkt der Last einfach austarieren und ein waagerechtes Heben bewerkstelligen.
Alternativ lässt sich der Big-Bag mit seinen Schlaufen auch am Lasthaken einhängen und vom Gabelstapler transportieren.
Die Alu-Lasttraverse verfügt über Standfüße, auf denen sie bei Nichtbenutzung sicher abgestellt werden kann. Ohne die Klappfüße, würde die Traverse teils auf den Gabelstaplerschuhen oder dem Lasthaken zum Liegen kommen.
