
Die REMA Seilwinde Typ RWL ist eine zuverlässige Handseilwinde für vielfältige Hebe- und Zugaufgaben im industriellen Bereich, im Handwerk und im Bauwesen. Ihre robuste Konstruktion nach DIN 15020, das Doppelsperrklinkensystem für mehr Sicherheit sowie das integrierte Freilaufsystem machen sie zu einer besonders flexiblen Lösung für manuelles Heben und Ziehen – auch bei häufigem Richtungswechsel oder Lastwechsel.
Gebremste Ausführung mit Doppelsperrklinkensystem für sicheren Halt in jeder Position.
Erleichtert das schnelle Abziehen des Seils ohne Kraftaufwand – ideal für Positionierungen ohne Last.
Gelagerte Trommel und Achsen für einen ruhigen, verschleißarmen Betrieb.
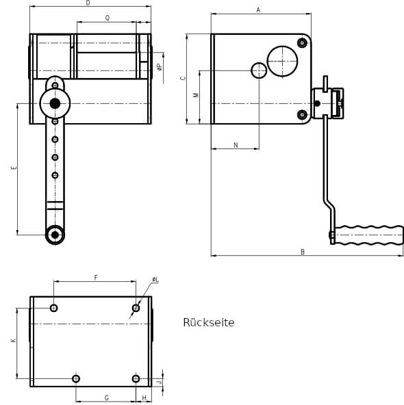
Die Kurbellänge ist stufenweise einstellbar – für ideale Hebelwirkung und ergonomisches Arbeiten.
| Technische Daten | Details |
|---|---|
| Modell | REMA RWL |
| Norm | DIN 15020 |
| Bremsmechanismus | Doppelsperrklinkensystem |
| Freilauf | Ja, abgeschirmtes Sperrklinkensystem |
| Kurbellänge | Stufenweise einstellbar |
| Lagerung | Trommel und Achsen gelagert |
| Oberfläche | Pulverbeschichtet (RAL 2004) |
Ideal für manuelle Hebe- und Zugvorgänge, z. B. beim Positionieren schwerer Werkstücke.
Zuverlässig einsetzbar zum Heben und Senken von Bauteilen oder beim Materialtransport.
Optimal für Anwendungen im Gelände, z. B. beim Ziehen von Lasten oder beim Aufrichten von Konstruktionen.
Das doppelte Sperrklinkensystem schützt zuverlässig vor ungewolltem Abrutschen der Last. Die robuste Bauweise nach DIN-Norm macht die Seilwinde zur langlebigen Lösung – auch im harten Dauereinsatz.
Die REMA RWL Handseilwinde überzeugt durch durchdachte Technik, langlebige Qualität und hohe Funktionalität. Ob im mobilen Einsatz oder fest installiert – diese Winde ist die richtige Wahl für alle, die Wert auf Sicherheit, Flexibilität und Bedienkomfort legen.
Jetzt bestellen und vielseitig Lasten bewegen!
