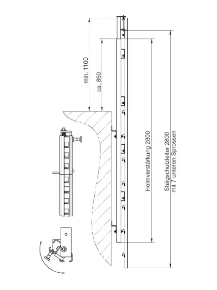
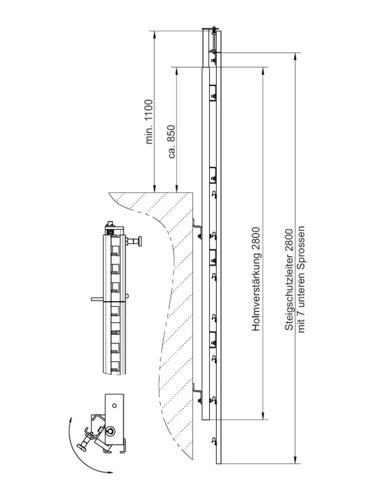
Die Holmverstärkung wird mit vormontierten Halterungen geliefert, um eine schnelle und sichere Befestigung am Bauwerk und an der Steigschutzleiter zu ermöglichen. Damit wird nicht nur Stabilität, sondern auch eine effiziente Installation gewährleistet.
Bei der Befestigung der Holmverstärkung am Bauwerk sind die Vorschriften der jeweiligen Dübel-Hersteller unbedingt zu beachten, um die maximale Sicherheit zu gewährleisten.
Die Steigschutzleiter, ausgestattet mit 7 unteren Sprossen, wird an die Holmverstärkung montiert. Hierbei ist besonders darauf zu achten, dass die oberste Sprosse nicht höher als die Standfläche positioniert wird. Diese Anforderung entspricht den Normen DIN 18799-2 und DIN EN ISO 14122-4.
Am oberen Ende der Leiter kann optional ein schwenkbarer Ein- und Ausstieg oder eine lösbare Sperre angebracht werden, um den Zugang noch sicherer zu gestalten. In beiligenden Bild wird der nach links schwenkbare Ein- und Ausstieg exemplarisch dargestellt, was zusätzliche Sicherheit beim Überstieg bietet.
